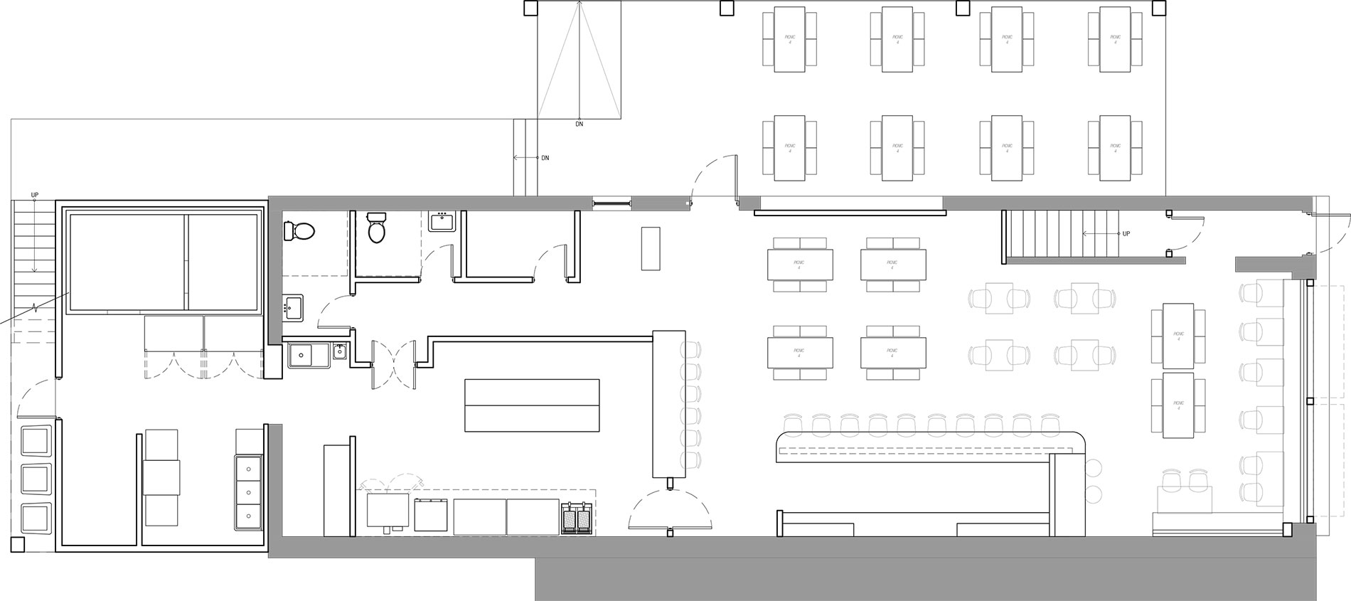
The Griffin
Project Type: Restaurant, Venue, Commercial Interiors
Location: Youngsville, North Carolina
Status: Unbuilt 2022
Design Team: West Workshop
Images: Kurt West & Cailey Kurkul
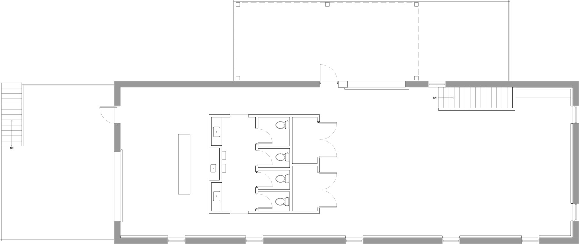
Location: Youngsville, North Carolina
Status: Unbuilt 2022
Design Team: West Workshop
Images: Kurt West & Cailey Kurkul




